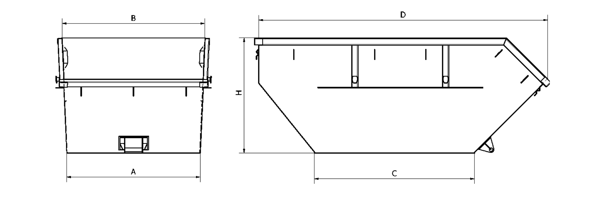
Offen Stahlcontainer
Wählen Sie Ihre Einstellungen
Kontakt und Bestellungen
Sie suchen nach einer Lösung, die Ihnen die Entsorgung von sperrigen Abfällen erleichtert, oder benötigen Sie sehr große Abfallbehälter? Unser Unternehmen produziert verschiedene Arten von Containern, die sich hervorragend für Abfall wie Schutt, Schrott oder kommunale Abfälle eignen. Wir produzieren unter anderem offene Stahlcontainer, die in solchen Situationen eine gute Wahl sind. Wir laden Sie ein, sich mit unserem Angebot vertraut zu machen.
KIPPHAKEN und UMGEBENDE BAND

Kipphaken 1x3

Kipphaken 1x1

Kipphaken 2x3
